1. en
  2. de
  3. uk

PROJECT DONE WITH:

INTERsoft-INTELLICAD

PROJECT DONE WITH ArCADia BIM SYSTEM:

PROJECT DONE WITH THE:

ArCADia BIM + ArCADia-ARCHITECTURE + ArCADia-RAMA

PROJECT DONE WITH:

ArCADia BIM + ArCADia-ARCHITECTURE

Realistic materials of water and grass

 

 
Water reservoirs of any shape

Sidewalks, paths, lawns or flowerbeds 

City Park project 

Built-in rendering

Area Infrastructure

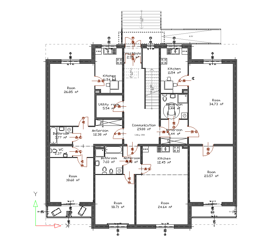
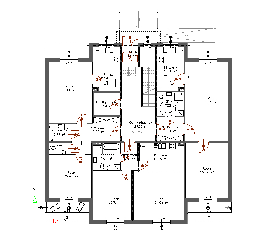
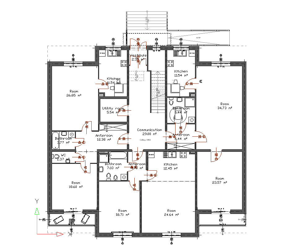
Ground floor view

Elevation

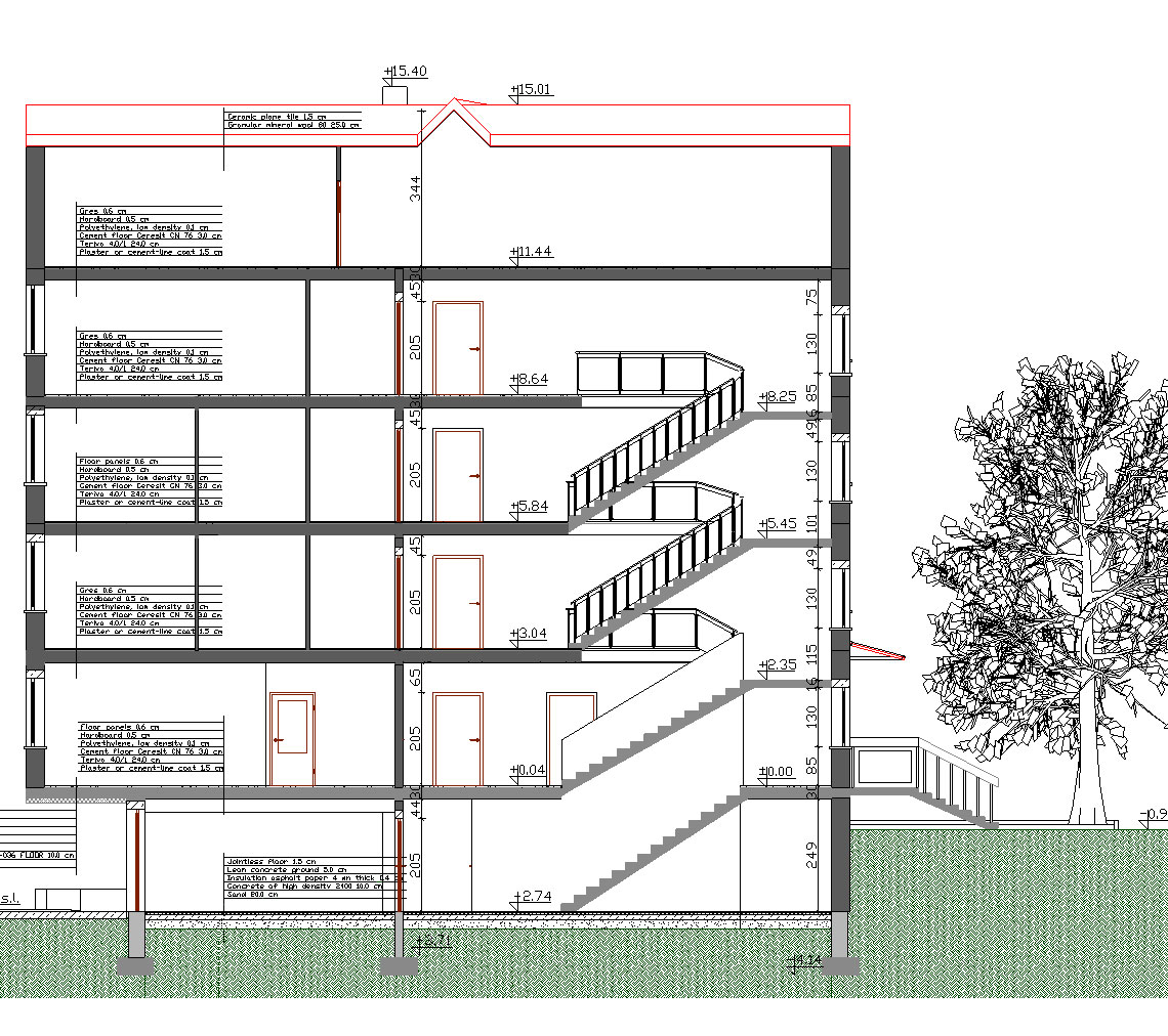
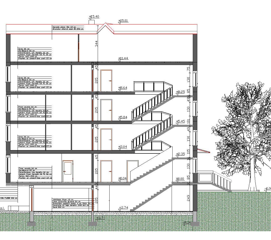
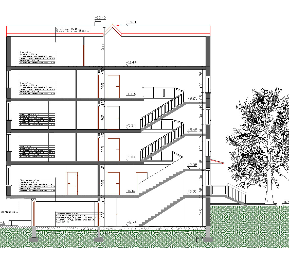
Cross-section

Generated shading visualization

Build-in rendering

Copyright © 2021 ArCADiasoft