x

SALE
ArCADiasoft – BIM and CAD software developer since 1997
  1. en
  2. de
  3. uk
ArCADiasoft on YouTube

The single-family house project

The complete project is drawn in the ArCADia BIM SYTEM using ArCADia BIM + ArCADia-ARCHITECTURE + ArCADia-WATER SUPPLY INSTALLATION + ArCADia-SEWAGE INSTALLATION + ArCADia-GAS INSTALLATION + ArCADia-HEATING INSTALLATION + ArCADia-ELECTRICAL INSTALLATION + ArCADia-LIGHTING PROTECTION INSTALLATION.

CAD 3D View of the building 

CAD 3D View of the installation

Axonometry of the water installation 

Development of the sewage installation

Axonometry of the gas installation 

Axonometry of the heating installation 

Sewage installation profile

Real Time Advanced View 

Elevation Views

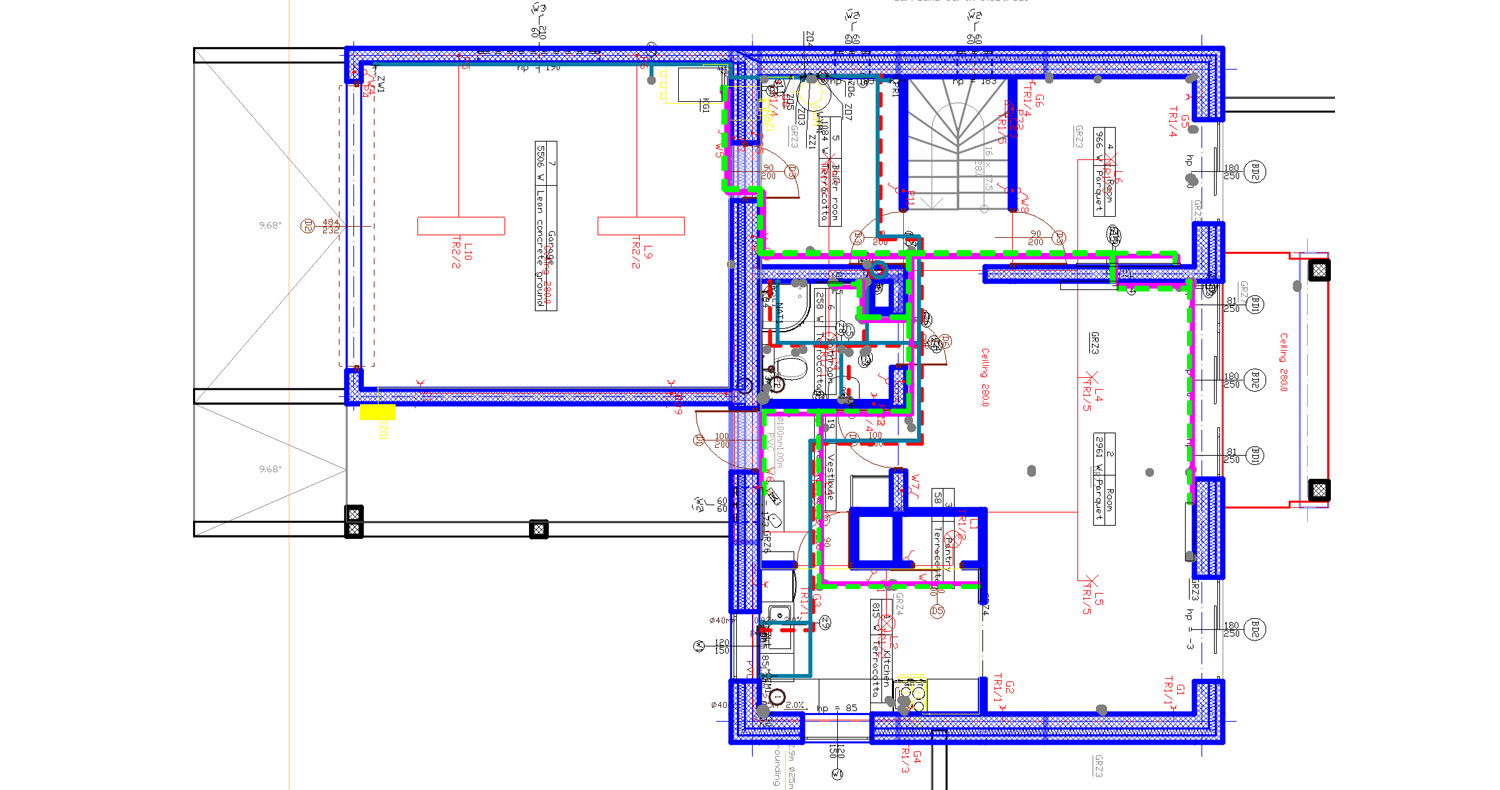
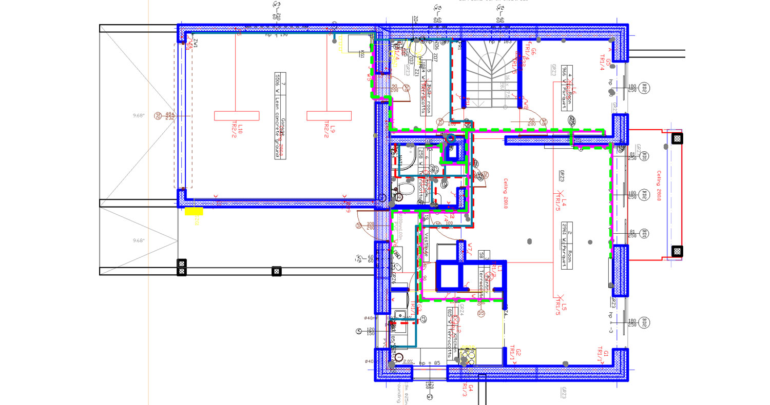
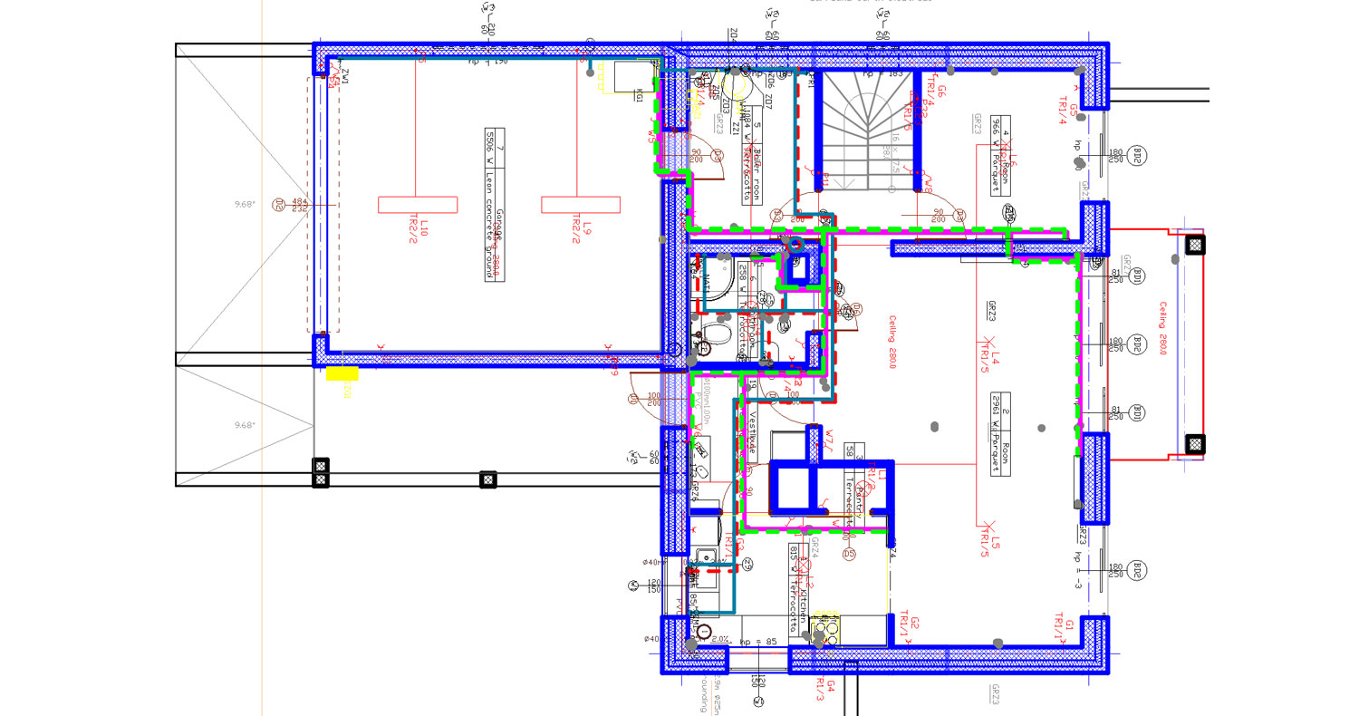
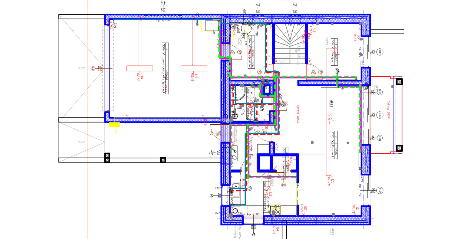
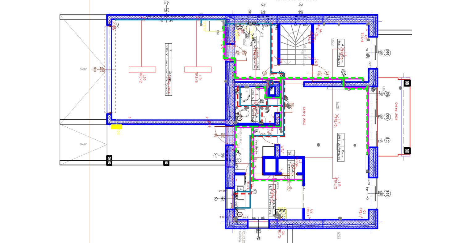
Ground Floor View

 All installation with architecture transparency filter 

 All installation with architecture switched off

IntelliCAD Technology Consortium — ArCADiasoft partner
Intersoft — ArCADia software developer
ArCADiasoft on Instagram
ArCADiasoft on YouTube
ArCADiasoft on Facebook

Copyright © 2026 ArCADiasoft

Microsoft Partner — ArCADiasoft

HOME  |  PRODUCTS  |  COMPANY  |  CONTACT  |  FOR RESELLERS